Longueuil (Le Vieux-Longueuil) QC, J4K 8C2
Remarks:
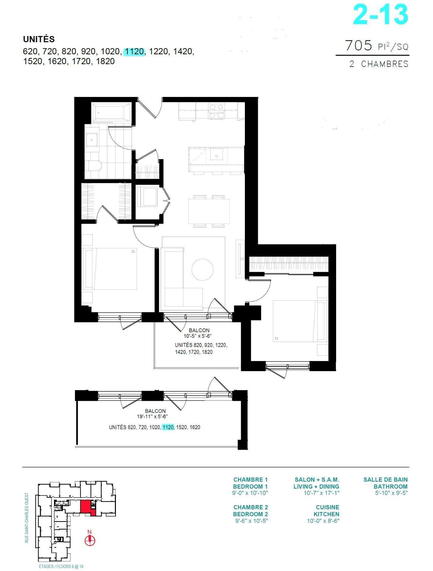
Superbe condo situé au 11e étage du Projet Sir Charles! Vue imprenable sur le Pont Jacques Cartier. Unité de 705 pc brut, offrant un stationnement au garage et un espace de rangement intérieur. Condo très lumineux grâce à l'imposante fenestration dans les pièces de vie. L'appartement offre deux chambres à coucher, une salle de bain, une pièce à vivre spacieuse où aménager le salon et la salle à manger, ainsi qu'une cuisine contemporaine élégante et intemporelle. Localisation exceptionnelle! En face du Métro Longueuil. Au pied de pont et de tous les services! Libre immédiatement.
Projet Sir Charles!
L'UNITÉ 1120 en bref :
- Unité de 705 pc (brut)
- Balcon avec balustrades vitrées et cadre en aluminium
- Deux chambres à coucher
- Magnifique cuisine contemporaine et fonctionnelle avec dosseret de céramique et comptoir de quartz
- Salle de bain avec bain-douche et vanité contemporaine avec comptoir de quartz
- Laveuse sécheuse superposées
- Un espace de stationnement au garage près de la porte de l'ascenseur
- Un espace de rangement
- Inclusions (toutes neuves): réfrigérateur, lave-vaisselle, plaque de cuisson, four, hotte micro-ondes, laveuse, sécheuse
- Plancher de lattes de bois
- Climatisation murale
- Plafond recouvert de gypse
LA COPROPRIÉTÉ en bref :
- 25 étages totalisant 366 unités résidentielles
- Porte d'entrée principale avec interphone relié au téléphone
- Structure en béton (insonorisation supérieure)
- Réservoir d'eau chaude commun (incluse dans les frais de condo)
- Chute à déchets
- Bacs à recyclage au sous-sol
- Bâtiment équipé d'un système de gicleurs et de détecteurs de fumée et de chaleur
- Trois ascenseurs à l'entrée principale
- Trois étages de stationnement intérieur chauffé
- Système de surveillance par caméra
- Espaces communs prestigieux (piscine extérieure, spa, sauna, gym, terrasse commune sur le toit)
- Situé en face de la station de Métro Longueuil
- Accessibilité incomparable au centre-ville de Montréal et au-delà!
Inclusions: Luminaires, réfrigérateur, lave-vaisselle, cuisinière, hotte, micro-ondes, laveuse, sécheuse, AC murale, ouvre-porte de garage.
Exclusions : Aucun
Building Features:
- Style: Apartment
- Animal types: Pets allowed with conditions
- Building amenity and common areas: Common areas, Elevator, Balcony/terrace, Garbage chute, Fitness room, Outdoor pool, Indoor storage space, Sauna, Hot tub/Spa, Visitor parking, Roof terrace
- Garage: Heated, Built-in, Single width
- Parking: Garage
- Pool: Heated, Inground
- Property or unit amenity: Wall-mounted air conditioning, Fire detector, Air exchange system, Intercom, Electric garage door opener, Inside storage, Partially furnished
- Proximity: Highway, CEGEP, Daycare centre, Golf, Metro, Park, Bicycle path, Elementary school, High school, Public transportation, University
- Restrictions/Permissions: Short-term rentals not allowed
- View: Panoramic, View of the city
- Heating System: Electric baseboard units
- Heating Energy: Electricity
- Water Supply: Municipality
- Sewage System: Municipality
Taxes:
- Municipal Tax: $0
- School Tax: $0
- Annual Tax Amount: $0
Expenses:
- Condo Fees: $307 Monthly
Property Features:
- Bedrooms: 2
- Bathrooms: 1
- Built in: 2024
- Floor Space (approx): 705.0 Square Feet
- Zoning: RESI
- No. of Parking Spaces: 1
Rooms:
- Foyer Other level 2.06 m x 1.55 m 6.9 ft x 5.1 ft Flooring: Wood
- Living Other level 4.98 m x 3.15 m 16.4 ft x 10.4 ft Flooring: Wood
- Dining Other level 2.46 m x 3.05 m 8.1 ft x 10.0 ft Flooring: Wood
- Kitchen Other level 2.82 m x 2.59 m 9.3 ft x 8.6 ft Flooring: Wood
- Primary Bedroom Other level 2.74 m x 3.25 m 9.0 ft x 10.8 ft Flooring: Wood
- Walk-in Closet Other level 1.35 m x 1.88 m 4.5 ft x 6.2 ft Flooring: Wood
- Bedroom Other level 2.87 m x 3.10 m 9.5 ft x 10.2 ft Flooring: Wood
- Laundry Other level 0.97 m x 1.30 m 3.2 ft x 4.3 ft Flooring: Wood
- Bathroom Other level 2.82 m x 1.70 m 9.3 ft x 5.7 ft Flooring: Ceramic
Convert Measurement to:
Data provided by: Centris - 600 Ch Du Golf, Ile -Des -Soeurs, Quebec H3E 1A8
All information displayed is believed to be accurate but is not guaranteed and should be independently verified. No warranties or representations are made of any kind. Copyright© 2021 All Rights Reserved.
Market Price Trends
Location of 1120-200 Rue Marie-Charles-Le Moyne, Longueuil (Le Vieux-Longueuil), QC, J4K 8C2
Demographic Information of 1120-200 Rue Marie-Charles-Le Moyne, Longueuil (Le Vieux-Longueuil), QC, J4K 8C2
Life Stage
Young FamiliesEmployment Type
Service SectorAverage Household Income
$95,467.94Average Number of Children
1.42Household Population
Household Structure
Age of Population
Education
Education Level
No certificate/diploma/degree
7.68 %High school certificate or equivalent
18.76 %Apprenticeship trade certificate/diploma
9.88 %College/non-university certificate
14.45 %University certificate (below bachelor)
5.24 %University Degree
43.99 %Commuter
Travel To Work
By Car
47.15 %By Public Transit
40.45 %By Walking
8.46 %By Bicycle
1.7 %By Other Methods
2.24 %Cultural Diversity
Knowledge of Official Language
Mother Tongue
Building Information
Building Type
Apartments (Low and High Rise)
100.0 %Houses
Own Vs. Rent
1120-200 Rue Marie-Charles-Le Moyne, Longueuil (Le Vieux-Longueuil), QC, J4K 8C2


































