Montréal (Le Sud-Ouest) QC, H4C 2H3
Property Information:
Beautiful 4½ on the ground floor with 2 bedrooms and 1 full bathroom, in a prime location!Bright and well-laid-out living space -- perfect for professionals or young couples who want to enjoy urban living while staying in a quiet, sought-after neighborhood.
Located just steps from Atwater Market and Lionel-Groulx Metro, close to highways, public transit, bike paths, and only a few minutes from downtown Montreal.
Inclusions: Washer/dryer, dishwasher, refrigerator and stove.
Building Features:
- Style: Apartment
- Bathroom: Separate shower
- Proximity: Highway, CEGEP, Hospital, Metro, Park, Bicycle path, Elementary school, High school, Public transportation, University
- Roofing: Asphalt and gravel
- Siding: Brick
- Heating System: Electric baseboard units
- Heating Energy: Electricity
- Water Supply: Municipality
- Sewage System: Municipality
Taxes:
- Municipal Tax: $2,574
- School Tax: $311
- Annual Tax Amount: $2,885
Expenses:
- Condo Fees: $230 Monthly
Property Assessemnt:
- Lot Assessment: $69,000
- Building Assessment: $358,000
- Total Assessment: $427,000
Property Features:
- Bedrooms: 2
- Bathrooms: 1
- Built in: 1989
- Floor Space (approx): 74.0 Square Metres
- Zoning: RESI
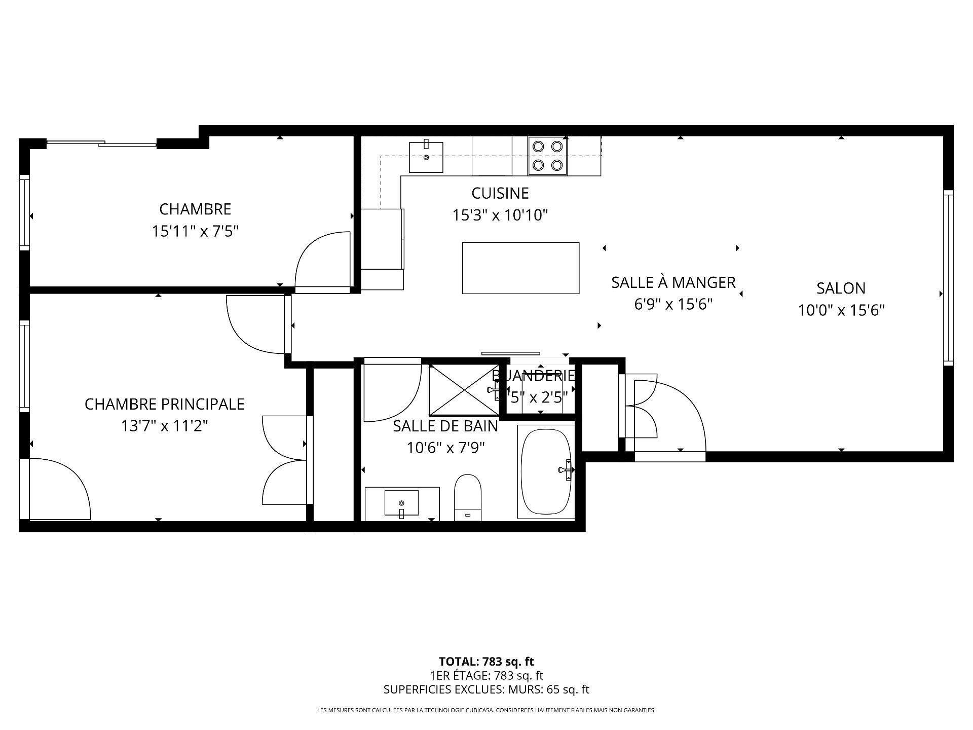
Rooms:
- Living 3.05 m x 4.72 m 10.0 ft x 15.6 ft Flooring: Wood
- Dining 2.06 m x 4.72 m 6.9 ft x 15.6 ft Flooring: Wood
- Kitchen 4.65 m x 3.30 m 15.3 ft x 10.10 ft Flooring: Ceramic
- Bathroom 3.20 m x 2.36 m 10.6 ft x 7.9 ft Flooring: Ceramic
- Primary Bedroom 4.14 m x 3.40 m 13.7 ft x 11.2 ft Flooring: Wood
- Bedroom 4.85 m x 2.26 m 15.11 ft x 7.5 ft Flooring: Wood
Convert Measurement to:
Data provided by: Centris - 600 Ch Du Golf, Ile -Des -Soeurs, Quebec H3E 1A8
All information displayed is believed to be accurate but is not guaranteed and should be independently verified. No warranties or representations are made of any kind. Copyright© 2021 All Rights Reserved.
Market Price Trends
Location of 102-771 Av. Marin, Montréal (Le Sud-Ouest), QC, H4C 2H3
Demographic Information of 102-771 Av. Marin, Montréal (Le Sud-Ouest), QC, H4C 2H3
Life Stage
Young SinglesEmployment Type
White CollarAverage Household Income
$118,958.06Average Number of Children
1.71Household Population
Household Structure
Age of Population
Education
Education Level
No certificate/diploma/degree
13.79 %High school certificate or equivalent
22.22 %Apprenticeship trade certificate/diploma
6.3 %College/non-university certificate
13.53 %University certificate (below bachelor)
3.43 %University Degree
40.73 %Commuter
Travel To Work
By Car
38.26 %By Public Transit
30.16 %By Walking
18.96 %By Bicycle
3.11 %By Other Methods
9.51 %Cultural Diversity
Knowledge of Official Language
Mother Tongue
Building Information
Building Type
Apartments (Low and High Rise)
79.93 %Houses
20.07 %




















































