Saint-Jean-Sur-Richelieu QC, J2W 1C6
Property Information:
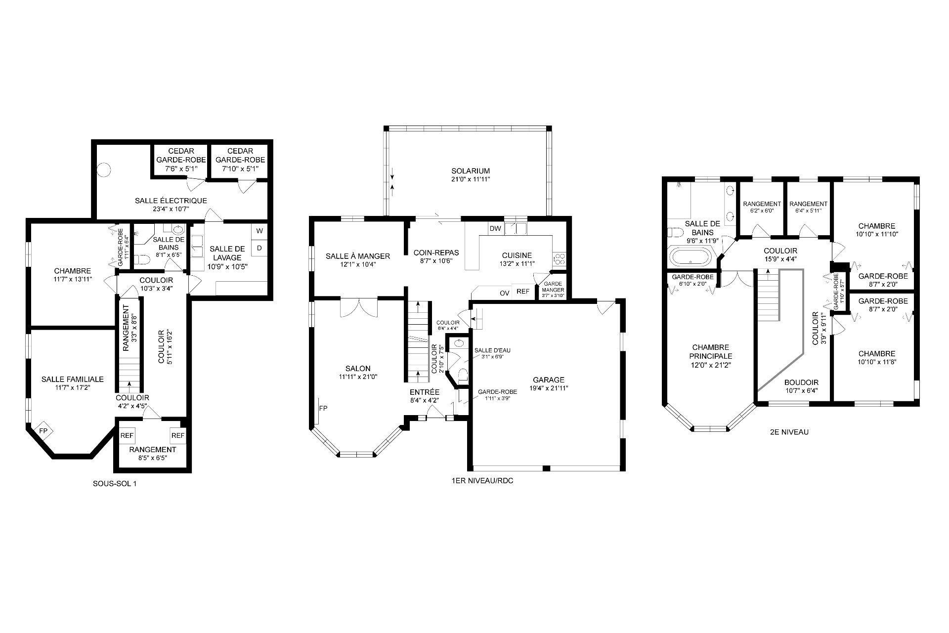
Prestigious home in one of Saint-Luc's most sought-after neighborhoods, near Boisés de la Mairie. Set on a double lot (almost 9,700 sq ft), it stands out with four-sided masonry, generous rooms, and a solarium with spa. You'll enjoy 4 bedrooms (including one in the basement, with potential to add more), a double garage, and a fully fenced yard. Impeccably maintained, bright and functional, on a quiet street close to all services -- a must-see!
Upon entry, the staircase showcases a lovely mezzanine and sun-filled living areas. The kitchen overlooks the large landscaped yard. The solarium with integrated spa becomes your year-round retreat. The basement offers a large multi-purpose room and ample storage, including two cedar closets; beneath the solarium, a 14-inch structural slab keeps your future projects open. Outside: private fenced yard, large shed, and a double garage with a 220-V outlet and additional attic storage. The central natural-gas system (heating and air conditioning) ensures optimal comfort.
Property highlights:
- Factory-built in a controlled environment (Maison Laprise)
- Bright, generous rooms
- Solarium with spa
- Finished basement with cold room and two cedar closets
- 14-inch structural slab beneath the solarium
- Double garage (220-V outlet, central-vac outlet, overhead storage)
- Large shed and fully fenced lot
An ideal location:
- 2 min to Boisés de la Mairie
- 3 min to A-35 & 10 min to A-10
- 6 min to Club de golf Les Légendes
- 20 min to the Champlain Bridge for access to Montreal
- 15 min to Cégep and Royal Military College of Saint-Jean
- Less than 8 min to primary and secondary schools
- Easy access to public transit, making it simple to reach Montreal via the REM.
Minutes to everyday conveniences, such as IGA, Pasquier, Super C, Walmart, Maxi, RONA, Home Depot, and more!
Inclusions: Refrigerator, microwave, built-in oven, dishwasher, spa, wine cellar, electrical fixtures, sink grinder disposal, alarm system (not garanteed to be in working condition because never used), central vacuum cleaner and accessories, garage door opener remote (x2). Blinds, curtains and rods.
Exclusions : Washer, dryer
Building Features:
- Style: Detached
- Basement: Finished basement
- Driveway: Asphalt
- Fireplace-Stove: Gas fireplace
- Foundation: Poured concrete
- Garage: Heated, Double width or more, Built-in
- Lot: Fenced, Landscaped
- Parking: Driveway, Garage
- Proximity: Highway, CEGEP, Golf, Hospital, Bicycle path, Elementary school, Réseau Express Métropolitain (REM), High school, ATV trail, Public transportation
- Roofing: 2025, Asphalt shingles
- Siding: Brick, Stone
- Size: 13.62 x 11.06 METRE
- Heating System: Forced air
- Heating Energy: Electricity, Natural gas
- Water Supply: Municipality
- Sewage System: Municipality
Taxes:
- Municipal Tax: $5,045
- School Tax: $535
- Annual Tax Amount: $5,580
Property Assessemnt:
- Lot Assessment: $283,800
- Building Assessment: $533,900
- Total Assessment: $817,700
Property Features:
- Bedrooms: 3+1
- Bathrooms: 2
- Half Bathrooms: 1
- Built in: 2007
- Irregular: Yes
- Lot Depth: 30.0 Metre
- Lot Frontage: 30.0 Metre
- Lot Size: 900.00 Square Metres
- Zoning: RESI
- No. of Parking Spaces: 6
Rooms:
- Living Ground Level 3.66 m x 6.40 m 12 ft x 21 ft Flooring: Wood Note: With fireplace
- Kitchen Ground Level 4.01 m x 3.38 m 13.2 ft x 11.1 ft Flooring: Ceramic
- Dinette Ground Level 2.62 m x 3.20 m 8.7 ft x 10.6 ft Flooring: Ceramic
- Dining Ground Level 3.68 m x 3.15 m 12.1 ft x 10.4 ft Flooring: Wood
- Powder room Ground Level 0.94 m x 2.06 m 3.1 ft x 6.9 ft Flooring: Ceramic
- Primary Bedroom - Irregular 2nd Level 3.66 m x 6.45 m 12 ft x 21.2 ft Flooring: Wood
- Bedroom 2nd Level 3.35 m x 3.66 m 11 ft x 12 ft Flooring: Wood
- Bedroom 2nd Level 3.35 m x 3.56 m 11 ft x 11.8 ft Flooring: Wood
- Bathroom 2nd Level 2.90 m x 3.58 m 9.6 ft x 11.9 ft Flooring: Ceramic
- Den 2nd Level 3.23 m x 1.93 m 10.7 ft x 6.4 ft Flooring: Wood
- Walk-in Closet 2nd Level 1.88 m x 1.83 m 6.2 ft x 6 ft Flooring: Wood
- Walk-in Closet 2nd Level 1.88 m x 1.83 m 6.2 ft x 6 ft Flooring: Wood
- Family Basement Level 3.53 m x 5.23 m 11.7 ft x 17.2 ft Flooring: Laminate floor
- Bedroom Basement Level 3.53 m x 4.24 m 11.7 ft x 13.11 ft Flooring: Laminate floor
- Cellar/Cold Room Basement Level 2.57 m x 1.96 m 8.5 ft x 6.5 ft Flooring: Ceramic
- Bathroom - Irregular Basement Level 2.46 m x 1.96 m 8.1 ft x 6.5 ft Flooring: Ceramic
- Laundry Basement Level 3.28 m x 3.17 m 10.9 ft x 10.5 ft Flooring: Ceramic
- Other Basement Level 7.11 m x 3.23 m 23.4 ft x 10.7 ft Flooring: Concrete
- Storage Basement Level 2.29 m x 1.55 m 7.6 ft x 5.1 ft Flooring: Concrete Note: Cedar closet
- Storage Basement Level 2.29 m x 1.55 m 7.6 ft x 5.1 ft Flooring: Concrete Note: Cedar closet
Convert Measurement to:
Data provided by: Centris - 600 Ch Du Golf, Ile -Des -Soeurs, Quebec H3E 1A8
All information displayed is believed to be accurate but is not guaranteed and should be independently verified. No warranties or representations are made of any kind. Copyright© 2021 All Rights Reserved.
Market Price Trends
Location of 263 Rue des Échevins, Saint-Jean-sur-Richelieu, QC, J2W 1C6
Demographic Information of 263 Rue des Échevins, Saint-Jean-sur-Richelieu, QC, J2W 1C6
Life Stage
Growing FamiliesEmployment Type
MixedAverage Household Income
$111,375.23Average Number of Children
1.74Household Population
Household Structure
Age of Population
Education
Education Level
No certificate/diploma/degree
20.98 %High school certificate or equivalent
21.83 %Apprenticeship trade certificate/diploma
22.14 %College/non-university certificate
18.22 %University certificate (below bachelor)
1.19 %University Degree
15.63 %Commuter
Travel To Work
By Car
95.92 %By Public Transit
0.36 %By Walking
0.0 %By Bicycle
0.15 %By Other Methods
3.57 %Cultural Diversity
Knowledge of Official Language
Mother Tongue
Building Information
Building Type
Apartments (Low and High Rise)
53.8 %Houses
46.2 %




































































