Saint-Louis-De-Gonzague QC, J0S 1T0
Remarks:
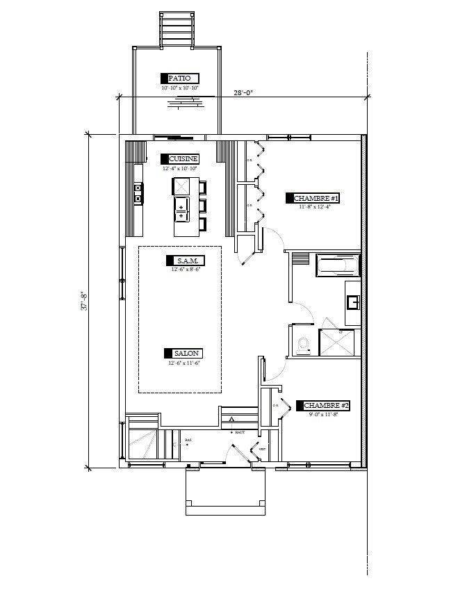
Maison de type unifamilial jumelée détenue en copropriété divise. Superbe bungalow jumelé offrant deux chambres à coucher de bonnes dimensions et un grand rez-de-chaussée à aire ouverte. La cuisine moderne avec îlot s'ouvre sur la salle à manger et le salon lumineux, créant un espace convivial et spacieux. Une salle de bain complète avec douche en céramique se trouve également à ce niveau. Le sous-sol quand à lui pourra être aménagé selon vos goûts et vos besoins.
- Les frais de copropriété inclus un frais de plus ou moins 1250$ par année pour les assurances du Syndicat de copropriété
ainsi qu'un frais de plus ou moins 47$ pour les déclarations annuelles au registre des entreprises et un frais de 115$ pour le
fond de prévoyance.
- Les photos sont à titre indicatif seulement et représente le modèle à 1 chambre à coucher.
- Maison de type unifamilial jumelée détenue en copropriété divise.
- Quartier situé en bordure du Canal de Beauharnois avec rampe de mise à l'eau et sa piste cyclable de 72km.
- Emplacement idéal près de l'école primaire, de parcs et de garderies. Accès rapide à l'autoroute 30 et à environ 10 minutes
de Valleyfield et de ses atouts.
Inclusions: Céramique dans l'entrée et la salle de bain, rampe en verre, îlot, douche en céramique 36x48, échangeur d'air, deux encastrés dans la cuisine, budget luminaires intérieurs 500$, plomberie et électricité pour laveuse-sécheuse au sous-sol.
Exclusions : Finition du sous-sol, rough plomberie au sous-sol, balayeuse centrale, accessoires de toilette, dosseret de cuisine, thermopompe, paysagement, clôture, crépis, gouttières, pavage du stationnement et trottoir, règlement d'emprunt si applicable.
Building Features:
- Style: Semi-Detached
- Basement: 6 feet and more, Unfinished
- Bathroom: Separate shower
- Driveway: Unpaved
- Foundation: Poured concrete
- Kitchen Cabinets: Melamine
- Parking: Driveway
- Property or unit amenity: Water softener, Air exchange system
- Proximity: Daycare centre, Park, Bicycle path, Elementary school, Snowmobile trail, ATV trail
- Roofing: Asphalt shingles
- Siding: Brick, Vinyl
- Size: 28.0 x 37.6 Feet
- Topography: Flat
- Window Type: Sliding, Casement
- Windows: PVC
- Heating System: Electric baseboard units
- Heating Energy: Electricity
- Water Supply: Artesian well
- Sewage System: Municipality
Taxes:
- Municipal Tax: $0
- School Tax: $0
- Annual Tax Amount: $0
Expenses:
- Energy: $1,412
Property Features:
- Bedrooms: 2
- Bathrooms: 1
- Floor Space (approx): 1061.0 Square Feet
- Irregular: Yes
- Lot Depth: 38.0 Metre
- Lot Frontage: 11.5 Metre
- Lot Size: 437.00 Square Metres
- Zoning: RESI
- No. of Parking Spaces: 2
Rooms:
- Foyer - Irregular Ground Level 1.22 m x 3.35 m 4.0 ft x 11.0 ft Flooring: Ceramic
- Living - Irregular Ground Level 3.66 m x 3.51 m 12.0 ft x 11.6 ft Flooring: Laminate floor
- Kitchen - Irregular Ground Level 3.76 m x 3.25 m 12.4 ft x 10.8 ft Flooring: Laminate floor
- Dining - Irregular Ground Level 3.66 m x 2.44 m 12.0 ft x 8.0 ft Flooring: Laminate floor
- Primary Bedroom - Irregular Ground Level 3.71 m x 3.76 m 12.2 ft x 12.4 ft Flooring: Laminate floor
- Bedroom - Irregular Ground Level 2.92 m x 3.56 m 9.7 ft x 11.8 ft Flooring: Laminate floor
- Bathroom - Irregular Ground Level 2.44 m x 3.66 m 8.0 ft x 12.0 ft Flooring: Ceramic
Convert Measurement to:
Data provided by: Centris - 600 Ch Du Golf, Ile -Des -Soeurs, Quebec H3E 1A8
All information displayed is believed to be accurate but is not guaranteed and should be independently verified. No warranties or representations are made of any kind. Copyright© 2021 All Rights Reserved.
Market Price Trends
Location of 87Z Rue des Pêcheurs, Saint-Louis-de-Gonzague, QC, J0S 1T0
Demographic Information of 87Z Rue des Pêcheurs, Saint-Louis-de-Gonzague, QC, J0S 1T0
Life Stage
Families with TweensEmployment Type
Blue Collar/PrimaryAverage Household Income
$106,000.00Average Number of Children
2.00Household Population
Household Structure
Age of Population
Education
Education Level
No certificate/diploma/degree
20.13 %High school certificate or equivalent
22.82 %Apprenticeship trade certificate/diploma
24.16 %College/non-university certificate
19.46 %University Degree
13.42 %Commuter
Travel To Work
By Car
93.2 %By Public Transit
0.0 %By Walking
5.83 %By Bicycle
0.0 %By Other Methods
0.97 %Cultural Diversity
Knowledge of Official Language
Mother Tongue
Building Information
Building Type
Apartments (Low and High Rise)
26.92 %Houses
73.08 %









































