Salaberry-De-Valleyfield QC, J6T 0G3
Remarks:
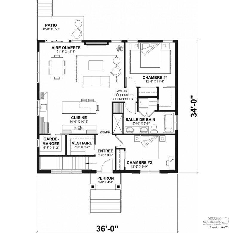
Plain-pied moderne vous offrant deux chambres à coucher au rez-de-chaussée, une salle de bain complète, espace pour laveuse et sécheuse dans la salle de bain. Vous y trouverez aussi un espace à aire ouverte comprenant le salon, la salle à manger et la cuisine. Possibilité de faire un logement d'appoint au sous-sol (prix en extra).
- À noter que le compte de taxes municipales tien seulement compte du terrain et qu'il y a un frais de 616$ pour travaux permanents qui sera payable par l'acheteur à chaque année jusqu'en 2040, possibilité de payer le montant total pour travaux permanents aux 5 ans.
- Photo à titre indicatif
- Possibilité de faire un intergénération ou logement d'appoint au sous-sol avec extra de 56 000$
- À proximité de plusieurs services, écoles primaires, secondaire, CÉGEP et de l'autoroute 30.
Inclusions: Céramique dans l'entrée et la salle de bain, bain autoportant, luminaires budget 1000$, échangeur d'air
Exclusions : Finition du sous-sol, balayeuse centrale, frais de notaire, gouttières, crépis, dosseret, paysagement, climatiseur
Building Features:
- Style: Detached
- Basement: 6 feet and more, Unfinished
- Bathroom: Separate shower
- Driveway: Unpaved
- Foundation: Poured concrete
- Property or unit amenity: Air exchange system
- Proximity: Highway, CEGEP, Daycare centre, Hospital, Park, Elementary school, High school, Public transportation
- Roofing: Asphalt shingles
- Size: 36.0 x 34.0 Feet
- Windows: PVC
- Heating System: Electric baseboard units
- Heating Energy: Electricity
- Water Supply: Municipality
- Sewage System: Municipality
Taxes:
- Municipal Tax: $1,669
- School Tax: $0
- Annual Tax Amount: $1,669
Property Features:
- Bedrooms: 2
- Bathrooms: 1
- Floor Space (approx): 1224.0 Square Feet
- Irregular: Yes
- Lot Depth: 27.66 Metre
- Lot Frontage: 16.7 Metre
- Lot Size: 462.00 Square Metres
- Zoning: RESI
Rooms:
- Foyer - Irregular Ground Level 1.52 m x 2.74 m 5.0 ft x 9.0 ft Flooring: Ceramic
- Living - Irregular Ground Level 6.60 m x 3.86 m 21.8 ft x 12.8 ft Flooring: Laminate floor
- Kitchen - Irregular Ground Level 4.42 m x 3.25 m 14.6 ft x 10.8 ft Flooring: Laminate floor
- Primary Bedroom - Irregular Ground Level 3.86 m x 3.45 m 12.8 ft x 11.4 ft Flooring: Laminate floor
- Bathroom - Irregular Ground Level 4.83 m x 1.73 m 15.10 ft x 5.8 ft Flooring: Ceramic
- Bedroom - Irregular Ground Level 3.86 m x 2.74 m 12.8 ft x 9.0 ft Flooring: Laminate floor
Convert Measurement to:
Data provided by: Centris - 600 Ch Du Golf, Ile -Des -Soeurs, Quebec H3E 1A8
All information displayed is believed to be accurate but is not guaranteed and should be independently verified. No warranties or representations are made of any kind. Copyright© 2021 All Rights Reserved.
Market Price Trends
Location of Rue des Érables, Salaberry-de-Valleyfield, QC, J6T 0G3
Demographic Information of Rue des Érables, Salaberry-de-Valleyfield, QC, J6T 0G3
Life Stage
Midlife FamiliesEmployment Type
MixedAverage Household Income
$88,341.53Average Number of Children
1.65Household Population
Household Structure
Age of Population
Education
Education Level
No certificate/diploma/degree
30.52 %High school certificate or equivalent
26.21 %Apprenticeship trade certificate/diploma
24.46 %College/non-university certificate
11.88 %University certificate (below bachelor)
0.02 %University Degree
6.92 %Commuter
Travel To Work
By Car
93.21 %By Public Transit
0.0 %By Walking
2.61 %By Bicycle
0.03 %By Other Methods
4.15 %Cultural Diversity
Knowledge of Official Language
Mother Tongue
Building Information
Building Type
Apartments (Low and High Rise)
39.43 %Houses
60.57 %



















