9747 158 Street, Edmonton, AB, T5P 2X2
Courtesy of Rishi Ghai of RE/MAX Excellence
$2,399,999MLS® # E4454863
House For Sale In Glenwood, Edmonton, Alberta
5
Bedrooms
4
Baths
-
690.39 Square Metres
Lot Size
Property Information:
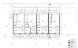
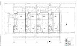
Welcome to this upcoming CORNER LOT 4plex in the heart of Glenwood, Edmonton, offering an exceptional investment opportunity with multiple income streams. This stunning property features legal basement suites and a garage suite, for a total of 21 bedrooms, 15 bathrooms, and over 3,700 sq. ft. of living space (approx. 1,100 sq. ft. per main unit, not including the garage suite). Each basement includes a separate entrance to a ~600 sq.ft. legal secondary suite with 2 bedrooms, full kitchen, living room, bathroom, and in-suite laundry — ideal for generating rental income or multi-generational living. The garage suite adds even more versatility for investors or extended family with its own full bedroom and bathroom + kitchen and living. Located in a highly desirable neighborhood, this property is close to schools, shopping, public transportation, and playgrounds, making it attractive to both families and professionals. A fully landscaped yard will be provided for low-maintenance living.
Building Features:
- Floor Space: 346 Metre
Property Features:
- Bedrooms: 3+2
- Bathrooms: 3+1
- Amenities Features: Ceiling 9 ft., Closet Organizers, Detectors Smoke, See Remarks, Infill Property, 9 ft. Basement Ceiling
- Appliances: Dishwasher-Built-In, Dryer, Refrigerator, Stove-Electric, Washer, Dryer-Two, Refrigerators-Two, Stoves-Two, Washers-Two, Dishwasher-Two
- Architectural Style: 2 Storey
- Basement: Full, Finished
- Basement Development: Fully Finished
- Basement Type: Full
- Building Type: Fourplex
- Built in: 2025
- Community Features: Ceiling 9 ft., Closet Organizers, Detectors Smoke, See Remarks, Infill Property, 9 ft. Basement Ceiling
- Exterior Features: Corner Lot, Flat Site, Landscaped, Playground Nearby, Public Transportation, Recreation Use, Schools, Shopping Nearby, See Remarks
- Floor Space (approx): 346 Square Metres
- Flooring: Carpet, Ceramic Tile, Vinyl Plank
- Foundation Details: Concrete Perimeter
- Heating: Forced Air-1, Natural Gas
- Lot Shape: Rectangular
- Lot Size: 690.39 Square Metres
- Parking Features: See Remarks
- Road Access: Paved
- Roof: Asphalt Shingles
- Site Influences: Corner Lot, Flat Site, Landscaped, Playground Nearby, Public Transportation, Recreation Use, Schools, Shopping Nearby, See Remarks
- Zoning: Zone 22
Courtesy of: RE/MAX Excellence
Data was last updated 2025-10-03 at 00:00
The data relating to real estate for sale on this web site comes in part from the Internet Data exchange (“IDX”) program of the REALTORS® Association of Edmonton. IDX information is provided exclusively for consumers' personal, non-commercial use and may not be used for any purpose other than to identify prospective properties consumers may be interested in purchasing. The data on this website is deemed reliable but is not guaranteed accurate by the REALTORS® Association of Edmonton. Information deemed reliable but not guaranteed.
Copyright 2025 by the REALTORS® Association of Edmonton. All Rights Reserved. Data is deemed reliable but is not guaranteed accurate by the REALTORS® Association of Edmonton.
Additional Photos




