$649,000

Property For Sale In City Centre, Surrey, British Columbia

$649,000
  • 2

    Bedrooms

  • 2

    Baths

  • $440

    Maintenance Fees

Property Information:

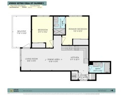
The Grand on King George presents a stunning 2-bed & 2-bath suite with spectacular views of the mountains, city, and the Fraser Valley. Thoughtfully designed for both comfort and style and with the combination of urban accessibility and proximity to nature, with sweeping views of the mountains and Fraser Valley, truly makes this location unbeatable. Residents can enjoy 23,000 sq. ft. of exclusive indoor and outdoor amenities, including a fully equipped gym and an off-leash dog park. Located just a minute's walk from Gateway SkyTrain Station, this prime location offers easy access to downtown Vancouver.

Building Features:

  • Air Conditioning: Yes
  • Floor Space: 758 Square Feet

Property Features:

  • Bedrooms: 2
  • Bathrooms: 2+0
  • Appliances: Washer/Dryer, Dishwasher, Refrigerator
  • Association Amenities: Bike Room, Clubhouse, Maintenance Grounds, Management, Recreation Facilities, Snow Removal
  • Basement: None
  • Built in: 2025
  • Condo Fees: $440
  • Cooling: Central Air
  • Exterior Features: Balcony
  • Fireplace Features: Electric
  • Floor Space (approx): 758 Square Feet
  • Heating: Baseboard, Electric
  • Levels: One
  • Parking Features: Garage Under Building
  • Structure Type: Multi Family, Residential Attached
  • No. of Parking Spaces: 1

Courtesy of: Planet Group Realty Inc.

The data relating to real estate on this web site comes in part from the MLS® Reciprocity program of the Greater Vancouver REALTORS®, the Fraser Valley Real Estate Board or Chilliwack & District Real Estate Board. Real estate listings held by participating real estate firms are marked with the MLS® Reciprocity logo and detailed information about the listing includes the name of the listing agent. This representation is based in whole or part on data generated by the Greater Vancouver REALTORS®, the Fraser Valley Real Estate Board or Chilliwack & District Real Estate Board which assumes no responsibility for its accuracy. The materials contained on this page may not be reproduced without the express written consent of the Greater Vancouver REALTORS®, the Fraser Valley Real Estate Board or Chilliwack & District Real Estate Board.