Lot 203 Foley's Crescent, Pouch Cove, Newfoundland & Labrador, A0A 3L0
$499,900MLS® # 1290555
House For Sale In Pouch Cove, Newfoundland and Labrador
$499,900
3
Bedrooms
2
Baths
-
1/2
Lot Size
Property Information:
Welcome to your future home — a beautifully designed bungalow that blends comfort, style, and functionality in one elegant package. This thoughtfully planned residence offers everything a modern family needs, with spacious interiors and high-end finishes throughout. 3 Spacious Bedrooms, Open Concept Living, Ensuite, Attached Garage (id:27)
Building Features:
- Style: Detached
- Building Type: House
- Architectural Style: Bungalow
- Exterior Finish: Wood shingles, Vinyl siding
- Floor Space: 2730 sqft
- Flooring Type: Laminate
- Foundation Type: Concrete
- Heating Type:
- Heating Fuel: Electric
Property Features:
- OwnershipType: Freehold
- Property Type: Single Family
- Bedrooms: 3
- Bathrooms: 2
- Built in: 2025
- Floor Space (approx): 2730 Square Feet
- Irregular: Yes
- Lot Size: 1/2
- Zoning: res
- Sewer: Septic tank
- Parking Type: Attached garage
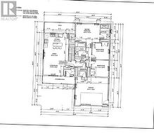
Rooms:
- Mudroom Main Level 6 x 5
- Ensuite Bathroom Main Level 6 x 7
- Primary Bedroom Main Level 15 x 12
- Bedroom Main Level 11 x 10
- Bedroom Main Level 11 x 10
- Living Main Level 13 x 10
- Dining Main Level 15 x 8
- Kitchen Main Level 15 x 9
Courtesy of: eXp Realty
This listing content provided by REALTOR.ca has been licensed by REALTOR® members of The Canadian Real Estate Association.
This listing content provided by REALTOR.ca has been licensed by REALTOR® members of The Canadian Real Estate Association.
Additional Photos
