168 TEXAS ROAD, Amherstburg, Ontario, N9V 2R7
$659,900MLS® # 25021271
House For Sale In Amherstburg, Ontario
4
Bedrooms
3
Baths
-
34 X 250 FT
Lot Size
Property Information:
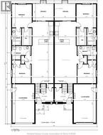
Brand new, to-be-built semi-detached home, fully finished up and down, now available for an impressive price of $659,900! This quality home is being built by one of the area's most reputable and premium builders, known for exceptional craftsmanship and attention to detail in every element. The main floor features elegant 9-foot ceilings, modern pot lighting throughout the living room and kitchen, stylish granite countertops, and two generously sized bedrooms. The primary suite includes a walk-in closet, a tray ceiling, and a beautifully appointed ensuite bathroom. The finished lower level offers two additional bedrooms, a full bathroom, and plenty of space for family, guests, or a home office. Step outside to enjoy a large rear deck, no rear neighbours for added privacy, and a fantastic location near scenic walking and biking trails, shopping centres, churches, and top-rated schools. This is truly unbeatable value for a high-quality, fully finished new home! (id:27)
Building Features:
- Style: Detached
- Building Type: House
- Architectural Style: Raised ranch
- Construction Style - Attachment: Attached
- Exterior Finish: Brick
- Floor Space: 1175 sqft
- Flooring Type: Laminate
- Foundation Type: Concrete
- Total Finished Area: 1175 sqft
- Heating Type:
- Heating Fuel: Natural gas
- Cooling Type: Central air conditioning
Property Features:
- OwnershipType: Freehold
- Property Type: Single Family
- Bedrooms: 2+2
- Bathrooms: 3
- Floor Space (approx): 1175 Square Feet
- Irregular: Yes
- Lot Size: 34 X 250 FT
- Zoning: RES
- Parking Type: Garage
Rooms:
- Bathroom Lower Level Measurements not available
- Bedroom Lower Level Measurements not available
- Utility Lower Level Measurements not available
- Living Lower Level Measurements not available
- Bedroom Lower Level Measurements not available
- Foyer Main Level Measurements not available
- Dining Main Level Measurements not available
- Living Main Level Measurements not available
- Primary Bedroom Main Level Measurements not available
- Bathroom Main Level Measurements not available
- Bedroom Main Level Measurements not available
- Bathroom Main Level Measurements not available
Courtesy of: REALTY ONE GROUP ICONIC BROKERAGE
This listing content provided by REALTOR.ca has been licensed by REALTOR® members of The Canadian Real Estate Association.
This listing content provided by REALTOR.ca has been licensed by REALTOR® members of The Canadian Real Estate Association.
Additional Photos


