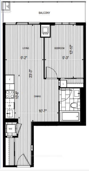
Lease In St. James Town, Toronto, Ontario
$2,100.00 /month1 Beds
1 Bath
-
Details
-
Map
-
Demographics
-
Street View
-
Get Directions
-
Advertising
Sales/Price History
Log in or create an account to see sold and historical listings information











