405 Corner Glen Way NE, Calgary, AB, T3N 2P1
798 900 $No. MLS® A2273861
Maison À vendre à Cornerstone, Calgary, Alberta
4
Chambres
3
Salles de bain
-
6264.00 Pieds carrés
Dimension du terrain
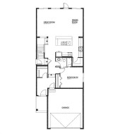
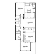
*SIDE ENTRANCE*BRAND NEW HOME*QUICK POSSESSION*10 SOLAR PANELS*MAIN FLOOR BEDROOM SUITE* Amazing Design! Unique in Features! Over 2700+ SF of Stylish design welcomes you into this stunning FOUR BEDROOM and 3 FULL BATH home located in the beautiful community of Cornerstone. You're welcomed to a thoughtfully designed living space that maximizes every inch while offering an abundance of space for your whole family to enjoy! The Gorgeous OPEN FLOOR PLAN invites you in to discover a lovely kitchen that boasts beautiful QUARTZ countertops, sleek stainless steel Whirlpool appliance package with an upgraded electric stove, French Door fridge w/ Internal Water/Ice, Microwave and a Broan power pack built-in cabinet hood fan. A large walk-in corner pantry and beautiful extended oversized flush centre Island that overlooks the generous great room and dining room-Ideal for all entertaining. A sizeable 4TH BEDROOM on the main floor, perfect for a large family or working from home as you have a full bath adjacent to the functional space with a private pocket door access. Upstairs, you will discover THREE MORE BEDROOMS with a Primary Bedroom boasting a 5pc en suite with dual vanities, a stand-alone shower, an oversized bath and two large walk-in closets. A centralized BONUS ROOM offers an additional living space and another full bath, plus 2nd-floor laundry with a window feature, completing the level. ADDITIONAL FEATURES: Fit and Finish SELECT, professionally designed Light Wood Palette, rear patio door, convenient side entrance, raised 9' basement ceiling height, and 3-piece rough-in plumbing. Situated close to the International Airport with quick access to both Deer Foot Trail and Stoney Trail, along with new amenities being added to the community continuously, you will enjoy all Cornerstone has to offer. A brand new build with all of the difficult decisions decided along with a functional and intelligent floorplan for a large family. Perfect!!
Particularités du bâtiment :
- Stationnement: Oui
- Superficie totale aménagée: 2621.59
Caractéristiques :
- Bâti en: 2025
- Caractéristiques du stationnement: Entrée en béton, Garage double attenant, Ouvre-porte de garage, Garage avec accès avant
- Caractéristiques extérieures: Aucun
- Caractéristiques intérieures: Meuble-lavabo double, Plafonds hauts, Îlot de cuisine, Maison sans animaux, Maison sans fumée, Plan de masse ouvert, Garde-manger, Maison intelligente, Chauffe-eau sans réservoir, Placard(s) praticable(s)
- Chambres : 4+0
- Chauffage: Air pulsé, Gaz naturel
- Détails de la fondation: Béton coulé
- Dimensions du terrain : 6264.00 Pieds carrés
- Irregular: Oui
- Matériaux de construction: Pierre, Parement de vinyle, Charpente en bois
- Niveaux: Deux
- Refroidissement: Aucun
- Revêtements de sol: Moquette
- Salle(s) de bains : 3+0
- Source d'eau: Public
- Style architectural: 2 étages
- Superficie habitable (approx): 2621.59 Pieds carrés
- Toiture: Bardeaux d'asphalte
- Zonage: R-G
- Nbre d'espaces de stationnement: 4
Gracieuseté de : Jayman Realty Inc.
Données fournies par : Calgary Real Estate Board 300 Manning Rd. NE, Calgary, Alberta T2E 8K4
Nous croyons que tous les renseignements affichés sont exacts, mais nous ne le garantissons pas; les renseignements devraient être vérifiés de façon indépendante. Aucune garantie ou représentation de quelque nature que ce soit n’est offerte. Droits © 2021 Tous les droits sont réservés.
Photos supplémentaires



