73 Elliot Wynd, Fort Saskatchewan, AB, T8L 1R8
Gracieuseté de Jasleen Brar de Exp Realty
560 000 $No. MLS® E4445113
Maison À vendre à Fort Saskatchewan, Alberta
3
Chambres
4
Salles de bain
-
Oui
Garage
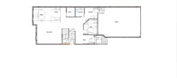
Welcome to this spacious 2-storey home located in the desirable South Pointe community of Fort Saskatchewan. The main floor offers a functional layout featuring a den, mudroom, a stylish kitchen with pantry, a bright dining area, a cozy living room with a fireplace, and a convenient 2-piece bathroom. Upstairs, you’ll find a large bonus room perfect for family time or a home office. The primary bedroom includes a walk-in closet and a luxurious 5-piece ensuite. The second bedroom also features a walk-in closet and its own private 4-piece ensuite, while a third bedroom is served by an additional 4-piece bathroom. Completing this fantastic home is a separate entrance, walkout basement and a double attached garage, offering plenty of parking and storage. This home blends comfort, space, and functionality—perfect for modern family living.
Particularités du bâtiment :
- Surface utile: 164 Mètre
Caractéristiques :
- Accès routier: Béton
- Appareils ménagers: Voir remarques
- Bâti en: 2025
- Caractéristiques de commodités: Détecteurs de fumée, Maison sans animaux, Maison sans fumée
- Caractéristiques de la communauté: Détecteurs de fumée, Maison sans animaux, Maison sans fumée
- Caractéristiques du stationnement: Garage double attenant
- Caractéristiques extérieures: Écoles
- Chambres : 3
- Chauffage: =Air pulsé-1, Gaz naturel
- Détails de la fondation: Périmètre en béton
- État du sous-sol: Non fini
- Forme du lot: Rectangulaire
- Points d'intérêt du site: Écoles
- Revêtement de plancher: Carreaux de céramique, Plancher stratifié
- Salle(s) de bains : 3+1
- Sous-sol: Pleine grandeur, Non fini
- Style architectural: 2 étages
- Superficie habitable (approx): 164 Mètres carrés
- Toit: Bardeaux d'asphalte
- Type de bâtiment: Unifamiliale détachée
- Type de sous-sol: Pleine grandeur
- Zonage: Zone 62
Gracieuseté de : Exp Realty
Dernière mise à jour des données le 2025-07-10 à 17:27
The data relating to real estate for sale on this web site comes in part from the Internet Data exchange (“IDX”) program of the REALTORS® Association of Edmonton. IDX information is provided exclusively for consumers' personal, non-commercial use and may not be used for any purpose other than to identify prospective properties consumers may be interested in purchasing. The data on this website is deemed reliable but is not guaranteed accurate by the REALTORS® Association of Edmonton. Information deemed reliable but not guaranteed.
Copyright 2025 by the REALTORS® Association of Edmonton. All Rights Reserved. Data is deemed reliable but is not guaranteed accurate by the REALTORS® Association of Edmonton.
Photos supplémentaires

