559 900 $

Maison À vendre à Creston, Colombie-Britannique

559 900 $
  • 3

    Chambres

  • 3

    Salles de bain

  • 0.16 Acres

    Dimension du terrain

This beautifully designed 3+ bedroom, 3 bathroom home, offers modern style and impressive mountain views from its elevated corner-lot setting. The main level draws you in with its high ceilings in the living room and generous windows that bring in natural light and showcase the stunning landscape beyond. A large, partially covered deck expands your living space outdoors, an ideal spot for entertaining or relaxing in any season. Inside, the home features a practical and well-planned layout, including a bright office, beautiful open kitchen with pantry, attached garage, and a spacious walk-out basement that provides endless possibilities for additional living, hobbies, or great set up for media room. With extra parking and a contemporary aesthetic throughout, this home is perfectly suited for those looking for comfort, functionality, and a beautiful backdrop. Priced below Market Value!

Caractéristiques :

  • Taxes annuelles totales: 5 287 $
  • Appareils ménagers: Sécheuse, Lave-vaisselle, Micro-ondes, Four, Réfrigérateur, Laveuse
  • Bâti en: 2014
  • Caractéristiques du stationnement: Attenant, Garage
  • Chambres : 3
  • Chauffage: Air pulsé, Gaz naturel
  • Climatisation: Climatiseur central
  • Dimensions du terrain : 0.16 Acres
  • Égouts: Égout public
  • Matériaux de construction: Bardage composite, Charpente en bois
  • Revêtements de sol: Stratifié, Tapis partiel, Tuile
  • Salle(s) de bains : 3
  • Source d'eau: Public
  • Style architectural: Ranch
  • Superficie habitable (approx): 2392 Pieds carrés
  • Toiture: Asphalte, Bardeau
  • Vue: Montagne(s)
  • Nbre d'espaces de stationnement: 3

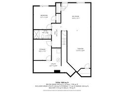
Détails des pièces :

  • Salon Rez-de-chaussé 5.03 m x 4.24 m
  • Chambre principale Rez-de-chaussé 3.68 m x 3.76 m
  • Hall d'entrée Rez-de-chaussé 3.02 m x 1.70 m
  • Pièce utilitaire Sous-sol 6.88 m x 6.93 m
  • Salle de bains Rez-de-chaussé .00 m x .00 m
  • Chambre Rez-de-chaussé 3.66 m x 3.51 m
  • Salle de lavage Rez-de-chaussé 3.51 m x 1.96 m
  • Salle de bain ensuite Rez-de-chaussé .00 m x .00 m
  • Rangement Sous-sol 3.48 m x 2.95 m
  • Chambre Sous-sol 3.68 m x 3.86 m
  • Salle des médias Sous-sol 6.93 m x 3.91 m
  • Salle de divertissement Sous-sol 4.98 m x 4.60 m
  • Bureau Rez-de-chaussé 3.18 m x 3.05 m
  • Cuisine Rez-de-chaussé 4.11 m x 4.01 m
  • Salle de bains Sous-sol .00 m x .00 m

Gracieuseté de : Royal LePage East Kootenay Realty

This listing content provided by Association of Interior REALTORS.