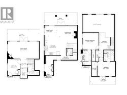
2598 MOUNTAINVIEW Crescent Unit# 33, Invermere, British Columbia, V0A 1K6
769 900 $No. MLS® 10360347
Le contenu de cette inscription est fourni par REALTOR.ca et a été autorisé par les membres de l'Association canadienne de l'immeuble.
Photos supplémentaires







































