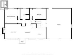
5712 6 Highway, Vernon, British Columbia, V1B 3E1
899 000 $No. MLS® 10371135
Le contenu de cette inscription est fourni par REALTOR.ca et a été autorisé par les membres de l'Association canadienne de l'immeuble.
Photos supplémentaires








































