7053 Manning Place Unit# 11, Vernon, British Columbia, V1B 0B6
699 999 $No. MLS® 10348134
Maison À vendre à Vernon, Colombie-Britannique
699 999 $
3
Chambres
3
Salles de bain
-
2
Espaces de stationnement
Remarques :
(id:27)
Particularités du bâtiment :
- Style: Maison en rangée
- Type de bâtiment: Maison en rangée
- Air climatisé: Oui
- Alimentation du foyer: Électricité
- Foyer: Oui
- Matériau de toiture: Bardeaux d'asphalte
- Revêtement extérieur: Stuc, Autre
- Stationnement: Oui
- Style de toiture: Inconnu
- Surface utile: 1854 sqft
- Type de construction: En rangée
- Type de foyer: Inconnu
- Type de plancher: Plancher recouvert de tapis, Carrelage, Tapis vinylique
- Type de chauffage: Air pulsé, Thermopompe
- Type de climatisation: Climatisation centrale, Thermopompe
- Électroménagers: Réfrigérateur, Lave-vaisselle, Cuisinière électrique, Micro-ondes
Caractéristiques :
- Type de possession: Copropriété divise
- Type de propriété: Unifamiliale
- Bâti en: 2025
- Caractéristiques: Îlot central, Balcon
- Caractéristiques de la communauté: Locations permises
- Chambres : 3
- Clôture: Clôture à mailles en losange
- Frais d'entretien: Assurance, Gestion immobilière, Autre, voir remarques, Élimination des déchets, Eau
- Salle(s) de bains : 3
- Salle(s) d'eau : 1
- Superficie habitable (approx): 1854 Pieds carrés
- Type de vue: Vue sur la montagne, Vue ( panoramique )
- Service d'égout: Égout municipal
- Type de stationnement: Garage attenant
- Nbre d'espaces de stationnement: 2
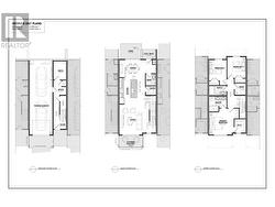
Détails des pièces :
- Salle de lavage 2e niveau 6'0'' x 5'8''
- Salle de bains 2e niveau 9'2'' x 5'0''
- Chambre 2e niveau 10'10'' x 9'7''
- Chambre 2e niveau 10'9'' x 9'2''
- Autre 2e niveau 5'9'' x 7'0''
- Salle de bains 2e niveau 9'2'' x 6'0''
- Chambre principale 2e niveau 13'7'' x 13'0''
- Hall d'entrée Niveau inférieur 6'8'' x 4'6''
- Vestibule Niveau inférieur 6'2'' x 4'1''
- Autre Niveau rez-de-chaussée 13'0'' x 6'0''
- Autre Niveau rez-de-chaussée 11'0'' x 8'0''
- Autre Niveau rez-de-chaussée 6'6'' x 5'0''
- Garde-manger Niveau rez-de-chaussée 5'3'' x 4'6''
- Salle de bains Niveau rez-de-chaussée 6'0'' x 5'3''
- Salle à dîner Niveau rez-de-chaussée 9'0'' x 13'5''
- Salon Niveau rez-de-chaussée 15'7'' x 15'8''
- Cuisine Niveau rez-de-chaussée 13'5'' x 14'3''
Gracieuseté de : RE/MAX Vernon
Le contenu des inscriptions fournies par REALTOR.ca a été autorisé par les membres de l'Association canadienne de l'immeuble.
Le contenu de cette inscription est fourni par REALTOR.ca et a été autorisé par les membres de l'Association canadienne de l'immeuble.
Photos supplémentaires













