28 Lunney ST, Fredericton, NB, E3G 0H2
697 500 $No. MLS® NB118059
Maison À vendre à Centre-ville, Fredericton, Nouveau-Brunswick
3
Chambres
2
Salles de bain
-
Oui
Garage
Coming This Summer! Stunning, Modern and practical split entry in popular Brookside West. This home has the wow factor with custom floor to ceiling kitchen cabinets with a large step in pantry and quartz throughout. Steel roof for easy solar panel hook up (interest free government grants available) , Nine foot ceilings on main level. Open concept with Large Island and Pantry, 2 car garage and large private deck. Energy efficient with mini-split heat pump + much more! great possibility for rental income. measurements shoould be verified and Photos are simulated.
Particularités du bâtiment :
- Air climatisé: Oui
- Garage: Oui
- Superficie totale aménagée: 2328 Pieds carrés
- Surface utile: 1464 Pieds carrés
Caractéristiques :
- Bâti en: 2025
- Caractéristiques intérieures: Échangeur d'air, Attenant, Salle familiale - Étage principal, Garantie domiciliaire restant, Buanderie - Étage principal, Chambre principale - Étage principal, Système d'atténuation du radon mis en place
- Caractéristiques terrestres: Dégagé, Terrain plat, Aucun aménagement paysager
- Chambres : 3+0
- Chauffage / climatisation: Air sans conduit, Échangeur d'air, Plinthes, Électrique
- Dimensions de la propriété: Moins de 0,5 acre
- Entrée: Gravier
- Extérieur: Brique, Vinyle, Revêtement de bois
- Fondation / sous-sol: Dalle
- Revêtements de sol: Vinyle, Autre
- Salle(s) de bains : 2+0
- Style de propriété: Entrée partagée
- Superficie habitable (approx): 1464 Pieds carrés
- Toiture: Métal
- Eau: Municipal
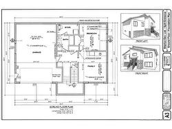
Détails des pièces :
- Chambre principale Rez-de-chaussé 4.27 m x 4.27 m 14' p x 14' p
- Chambre Rez-de-chaussé 4.27 m x 3.05 m 14' p x 10' p
- Chambre Rez-de-chaussé 3.35 m x 3.05 m 11' p x 10' p
- Salon Rez-de-chaussé 4.27 m x 4.27 m 14' p x 14' p
- Cuisine Rez-de-chaussé 4.27 m x 3.05 m 14' p x 10' p
- Salle à dîner Rez-de-chaussé 4.27 m x 2.74 m 14' p x 9' p
Gracieuseté de : Chippins Limited.
Données fournies par : Greater Moncton REALTORS® du Grand Moncton 541 Boul. Ste. George, Moncton, Nouveau-Brunswick E1E 2B6
Nous croyons que tous les renseignements affichés sont exacts, mais nous ne le garantissons pas; les renseignements devraient être vérifiés de façon indépendante. Aucune garantie ou représentation de quelque nature que ce soit n’est offerte. Droits © 2021 Tous les droits sont réservés.
Photos supplémentaires



