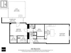
201 - 3710 MAIN STREET, Niagara Falls (Chippawa), Ontario, L2G 6B1
449 000 $No. MLS® X12557688
Le contenu de cette inscription est fourni par REALTOR.ca et a été autorisé par les membres de l'Association canadienne de l'immeuble.
Photos supplémentaires












































