LT 38 Friesian Court, Oro-Medonte, ON, L0K 1E0
1 992 900 $No. MLS® 40636416
Maison À vendre à Oro-Medonte, Ontario
4
Chambres
4
Salles de bain
-
8
Espaces de stationnement
Be the first to call this brand-new, customized builder home yours! With construction underway, you can still put your personal touch on the interior design, selecting the perfect colours and materials to make it truly yours. Benefit from the experience of knowledgeable previous homeowners, with many structural improvements and upgrades already integrated into this upcoming home. With a planned completion date of fall 2025 or flexible closing date options to suit your needs, this is an incredible chance to secure a home at Braestone and take advantage of significant savings. Now is the ideal time to act and turn your dream into reality, especially with interest rates expected to keep falling. This Friesian model offers 4,000 s.f. of finished living space with 2+2 bedrms and 3 ½ baths. Dramatic open concept design. Large windows across back. Walk-out from dining room to large roof cover area for future patio. 16 ft vault in living room with floor-to-ceiling stone fireplace surround. 9 ft smooth ceilings in balance of home incl basement. Hardwood plank flooring in main principal rooms. Stone counters in kitchen with separate walk-in pantry. Bathrooms feature frameless glass showers. Fully finished basement. Oversize triple garage with stairs up to storage loft above. Low maintenance James Hardie siding. Full list of standards available. Residents enjoy kms of walking trails and access to amenities on the Braestone Farm for; Pond Skating, Baseball, fruits and vegetables, Maple sugar shack, Artisan farming and many Community & Farm organized events. Located between Barrie and Orillia and approx one hour from Toronto. Oro-Medonte is an outdoor enthusiast's playground. Skiing, Hiking, Biking, Golf & Dining at the Braestone Club, Horseshoe Resort and the new Vetta Spa are minutes away.
Particularités du bâtiment :
- Foyer: Oui
- Stationnement: Oui
- Surface utile: 4002 Pieds carrés
Caractéristiques :
- Caractéristiques de la buanderie: Niveau principal
- Caractéristiques de sécurité: Détecteur de monoxyde de carbone, Détecteur de fumée, Détecteur(s) de monoxyde de carbone, Détecteur(s) de fumée
- Caractéristiques du bord de l'eau: Lac/étang
- Caractéristiques du foyer: Salon, Gaz, Salle de loisirs
- Caractéristiques du lot: Rural, Terrain irrégulier, Plage, Cul-de-sac, Terrain de golf à proximité, Ceinture de verdure, Ferme de plaisance, Hôpital, Principales autoroutes, Grands espaces, Parc, Zone tranquille, Corridor scolaire, Commerces à proximité, Ski, Sentiers
- Caractéristiques du stationnement: Garage mitoyen, Gravier, Entrée intérieure
- Caractéristiques extérieures: Habitation toute l'année
- Caractéristiques intérieures: Internet haute vitesse, Conduits pour système d'aspiration central, Minibar
- Chambres : 4
- Chauffage: Air pulsé, Gaz naturel
- Climatisation: Climatiseur central
- Commodités de l'association: BBQs Permitted
- Échelle d'acres:
- Égouts: Fosse septique
- Largeur du terrain en façade : 152.00 Pieds
- Matériaux de construction: Pierre, Autre
- Profondeur du terrain : 203.38 Pieds
- Salle(s) de bains : 3+1
- Services publics: Réseau cellulaire, Électricité branchée, Fibre optique, Ramassage d'ordures/collecteurs sanitaires, Gaz naturel branché, Ramassage du recyclage, Lampadaires, Téléphone branché, Installations souterraines
- Source d'eau: Municipal
- Sous-sol: Pleine grandeur, Fini, Pompe de puisard
- Stationnement de la voie d'accès: Entrée privée triple+
- Style architectural: Bungalow
- Superficie habitable (approx): 4002 Pieds carrés
- Toiture: Fibre de verre
- Type de bord de route: Route municipale
- Type de surface de la route: Pavée
- Zonage: R1*75
- Nbre d'espaces de stationnement: 8
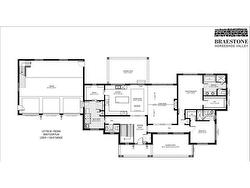
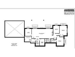
Détails des pièces :
- Hall d'entrée Rez-de-chaussé 2.13 X 4.29
- Salon Rez-de-chaussé 4.72 X 6.22
- Garde-manger Rez-de-chaussé 3.20 X 2.41
- Cuisine Rez-de-chaussé 3.84 X 4.83
- Salle à dîner Rez-de-chaussé 3.35 X 4.83
- Chambre principale Rez-de-chaussé 3.96 X 5.49
- Salle de lavage Rez-de-chaussé 3.20 X 4.44
- Chambre Rez-de-chaussé 3.96 X 3.51
- Autre Rez-de-chaussé 3.63 X 3.28
- Salle de bains Rez-de-chaussé
- Salle de divertissement Sous-sol 11.40 X 5.11
- Chambre Sous-sol 3.86 X 5.13
- Chambre Sous-sol 3.71 X 4.57
- Bureau Sous-sol 3.30 X 3.99
- Salle de culture physique Sous-sol 3.51 X 3.84
- Salle de bains Sous-sol 3.15 X 1.98
- Salle de bains Rez-de-chaussé
Gracieuseté de : RE/MAX Hallmark Chay Realty Brokerage
Données fournies par : Barrie & District Association of REALTORS® 676 Veterans Dr., Barrie, Ontario L9J 0H6
Nous croyons que tous les renseignements affichés sont exacts, mais nous ne le garantissons pas; les renseignements devraient être vérifiés de façon indépendante. Aucune garantie ou représentation de quelque nature que ce soit n’est offerte. Droits © 2021
Photos supplémentaires
















