639 900 $

Maison À vendre à Manotick, Ottawa, Ontario

639 900 $
  • 2

    Chambres

  • 2

    Salles de bain

  • 100 x 220 FT

    Dimension du terrain

Remarques :

(id:27)

Particularités du bâtiment :

  • Style: Maison détachée
  • Type de bâtiment: Unifamiliale
  • Air climatisé: Oui
  • État du sous-sol: Aménagé
  • Fondation: Blocs de béton
  • Foyer: Oui
  • Revêtement extérieur: Bardage en vinyle
  • Services:
  • Stationnement: Oui
  • Surface utile: 1100 - 1500 sqft
  • Type d'architecture: Maison de plain-pied
  • Type de construction: Isolée
  • Type de sous-sol: Sous-sol complet
  • Type de chauffage: Air pulsé
  • Combustible de chauffage: Gaz naturel
  • Type de climatisation: Climatisation centrale
  • Électroménagers: Adoucisseur d'eau, Télécommande(s) d'ouvre-porte de garage, Lave-vaisselle, Sécheuse, Hotte, Micro-ondes, Cuisinière, Machine à laver, Réfrigérateur

Caractéristiques :

  • Type de possession: Tenure franche
  • Type de propriété: Unifamiliale
  • Caractéristiques: Zone boisée, Ruelle, Sans tapis
  • Chambres : 2
  • Dimensions du terrain : 100 x 220 FT
  • Irregular: Oui
  • Largeur du terrain en façade : 100.0 Pieds
  • Profondeur du terrain : 220.0 Pieds
  • Salle(s) de bains : 2
  • Salle(s) d'eau : 1
  • Services à proximité: Terrain de golf à proximité, Marina, Parc
  • Superficie habitable (approx): 1100 - 1500 Pieds carrés
  • Type de structure: Terrasse, Porche, Remise
  • Type d'eau de ruissellement:
  • Zonage: RR10
  • Service d'égout: Fosse septique
  • Type de stationnement: Garage attenant, Garage
  • Nbre d'espaces de stationnement: 5

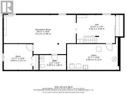
Détails des pièces :

  • Salle de lavage Niveau inférieur 6.63 m x 3.10 m
  • Pièce de détente Niveau inférieur 3.63 m x 3.13 m
  • Salle de divertissement Niveau inférieur 8.99 m x 4.75 m
  • Autre Niveau inférieur 3.36 m x 4.75 m
  • Chambre Niveau rez-de-chaussée 3.88 m x 3.20 m
  • 2e chambre Niveau rez-de-chaussée 5.35 m x 3.78 m
  • Cuisine Niveau rez-de-chaussée 3.39 m x 3.45 m
  • Salle à dîner Niveau rez-de-chaussée 5.38 m x 3.61 m
  • Salon Niveau rez-de-chaussée 5.60 m x 3.35 m
  • Salle de bains Niveau rez-de-chaussée 2.60 m x 3.15 m

Gracieuseté de : Royal LePage Team Realty

Le contenu des inscriptions fournies par REALTOR.ca a été autorisé par les membres de l'Association canadienne de l'immeuble.

  • Wood Burning Fireplace in Living Room -
  • Primary Bedroom -
  • Main Bathroom -
  • Lower Level Powder Room -
  • Lower Level Den -