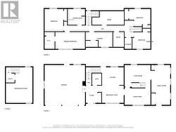
924 6 COUNTY ROAD S, Tiny (Wyevale), Ontario, L0L 2T0
599 900 $No. MLS® S12601990
Le contenu de cette inscription est fourni par REALTOR.ca et a été autorisé par les membres de l'Association canadienne de l'immeuble.
Photos supplémentaires



























