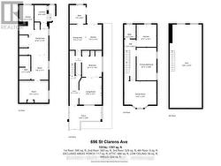
696 ST CLARENS AVENUE, Toronto, Ontario, M6H 3X1
849 900 $No. MLS® W12560324
Le contenu de cette inscription est fourni par REALTOR.ca et a été autorisé par les membres de l'Association canadienne de l'immeuble.
Photos supplémentaires

















