à Louer à Toronto, Ontario
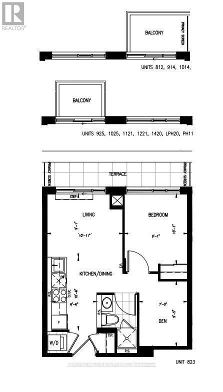
2 500.00 $ /mois1+1 Chambres
1 Salle de bain
-
Détails
-
Carte
-
Données démographiques
-
Vue de la rue
-
Itinéraire
-
Publicité















