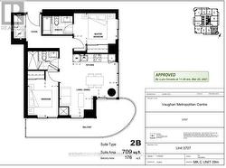
3707 - 8 INTERCHANGE WAY, Vaughan, Ontario, L4K 0R2
2 600.00 $ /moisNo. MLS® N12604244
Le contenu de cette inscription est fourni par REALTOR.ca et a été autorisé par les membres de l'Association canadienne de l'immeuble.
Photos supplémentaires












