#202 11 BROWNS Court, Charlottetown, PE, C1A 9H3
190 500 $No. MLS® 202524437
Copropriété À vendre à Spring Park, Charlottetown, Île-du-Prince-Édouard
190 500 $
2
Chambres
1
Salle de bain
-
$379
Frais de copropriété
Mid floor two bedroom one bath condo complete with balcony, walking distance to university and town amenities
Caractéristiques :
- Taxes annuelles totales:
- Bâti en: 1992
- Caractéristiques Communautaires: Transport en commun, Service d'autobus scolaire
- Chambres : 2
- Dimensions du terrain : NA
- Documents au Dossier: Plan détaillé, Acte translatif
- Électroménagers Inclus: Cuisinière - Électrique, Lave-vaisselle
- Entrée de GarageéStationnement: Espaces de stationnement
- Évacuation des eaux d'égout: Municipal
- Finittion Extérieure: Aucun
- Fondation: Aucune
- Frais de copropriété : 379 $ Mensuel
- Matériel de location: Aucun
- Revêtement de Plancher: Moquette, Vinyle
- Salle(s) de bains : 1
- Services: Câble, Électricité, Internet haute vitesse, Téléphone
- Source d'eau: Municipal
- Sous-sol: Aucun
- Style du bâtiment: 3 étages
- Superficie habitable (approx): 728 Pieds carrés
- Taille de la propriété: Aucun
- Titre d'un bien-fonds: Propriété franche
- Toit: Aucun
- Type de Carburant: Huile
- Type de Chauffage/Refroidissement: Plinthe
- Garage: Aucun
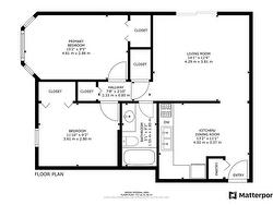
Détails des pièces :
- Cuisine 2e niveau 6'11 x 11
- Salle à dîner 2e niveau 6'4 x 11'6
- Autre 2e niveau 3'6 x 3'7 Entry
- Salon 2e niveau 13'9 x 12'7
- Salle de bains 2e niveau 4'10 x 8'11
- Rangement 2e niveau 2'11 x 4'4
- Chambre 2e niveau 11'4 x 9
- Chambre 2e niveau 13'3 x 9'4
Gracieuseté de : EXIT REALTY PEI
Données fournies par : Nova Scotia Association of REALTORS® 68 Highfield Park Drive, Bureau 112, Dartmouth, Nouvelle-Écosse B3A 0E4
Nous croyons que tous les renseignements affichés sont exacts, mais nous ne le garantissons pas; les renseignements devraient être vérifiés de façon indépendante. Aucune garantie ou représentation de quelque nature que ce soit n’est offerte. Droits © 2021 Tous les droits sont réservés.
Photos supplémentaires









