ÉvaluationExpressMC:
Non disponible
QuickQuote FR Les données disponibles sur cette propriété sont actuellement insuffisantes pour générer une Évaluation Express; prière de communiquer avec un expert.
ÉvaluationExpressMC fournit une estimation de valeurs potentielles pour une propriété, d’une évaluation plus basse à une évaluation plus élevée, fondée sur la valeur marchande actuelle, de même que sur des données propres au marché local ainsi que sur les renseignements disponibles sur la propriété. L'ÉvaluationExpressMC ne remplace pas une évaluation en personne effectuée par un professionnel expérimenté. En savoir plus ou communiquer avec un expert
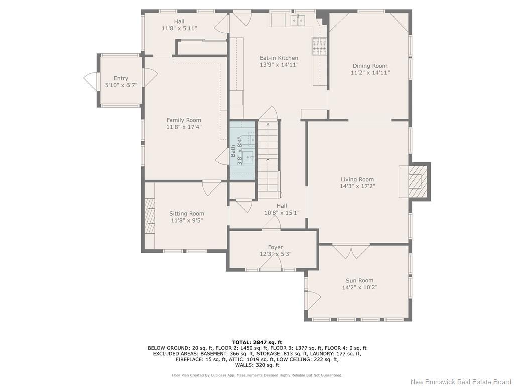
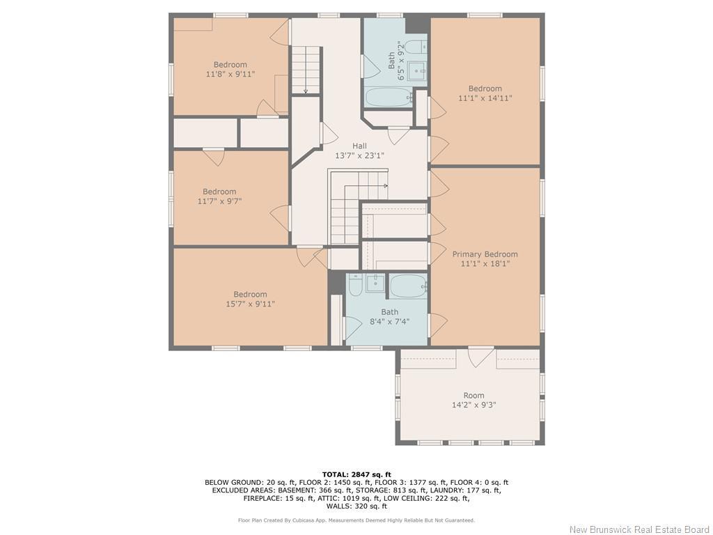
Dalhousie NB, E8C 2H9
No. MLS® NB126202

























































