Granby QC, J2H 2J9
Remarques :
Magnifique maison clé en main de deux étages située dans l'un des quartiers les plus recherchés de Granby! Cette propriété lumineuse de 3+1 chambres offre des planchers de bois franc à grandeur, un salon accueillant et un solarium ensoleillé. Profitez d'un superbe terrain de 8 459 pi² avec une piscine creusée chauffée, idéale pour recevoir. Comprend une salle de bain magnifiquement rénovée, une salle d'eau et un grand garage attenant d'une capacité d'environ 1½ voiture. Prête à emménager, cette maison qui baigne de lumière naturelle et offre un confort, un style et un espace magnifique dans un emplacement de choix!
Inclusions: Laveuse, Secheuse, Poele, Refrigerateur, Lave-Vaisselle, Hotte de poele, Aspirateurs Centrales et acc. (2 fois), Piscine et acc., Cabanon, Gazebo, toutes fournitures de Fenetres, Touts luminaires permanents, Moteur de Garage, 2 bancs au comptoir
Exclusions : Appareils Audio/Visuels accroches au murs avec montures
Particularités du bâtiment :
- Style: Maison détachée
- Air climatisé: Oui
- Allée: Asphalte
- Armoires de cuisine: Bois
- Dimensions : 49.0 x 43.0 Pieds
- Eau (accès): Accès
- Équipement disponible: Installation aspirateur central, Climatiseur central, Cour privée, Ouvre-porte électrique (garage)
- Fondation: Béton coulé
- Foyer: Oui
- Foyer-Poêle: Foyer au gaz
- Garage: Attaché
- Piscine: Oui
- Proximité: Autoroute, Garderie/CPE, Golf, Hôpital, Parc, Piste cyclable, École primaire, Ski alpin, Ski de fond, Sentier de motoneige
- Rénovations: Salle de bains
- Revêtement: Aluminium, Brique
- Revêtement de la toiture: Bardeaux d'asphalte
- Sous-sol: 6 pieds et plus, Totalement aménagé
- Stationnement: Oui
- Terrain: Bordé par des haies, Paysager
- Topographie: Plat
- Mode de chauffage: Air soufflé (pulsé)
- Énergie pour le chauffage: Électricité
- Approvisionnement en eau: Municipalité
- Système d'égouts: Municipalité
Taxes:
- Taxes municipales: 3 996 $
- Taxe scolaire: 391 $
- Taxes annuelles totales: 4 387 $
Dépenses:
- Électrique: 2 329 $
Property Assessemnt:
- Évaluation du terrain: 149 100 $
- Évaluation de l'immeuble: 492 900 $
- Évaluation totale: 642 000 $
Caractéristiques :
- Bâti en: 1998
- Chambres : 3+1
- Dimensions du terrain : 8459.00 Pieds carrés
- Irregular: Oui
- Largeur du terrain en façade : 74.0 Pieds
- Profondeur du terrain : 114.0 Pieds
- Salle(s) de bains : 1
- Salle(s) d'eau : 1
- Zonage: RESI
- Nbre d'espaces de stationnement: 5
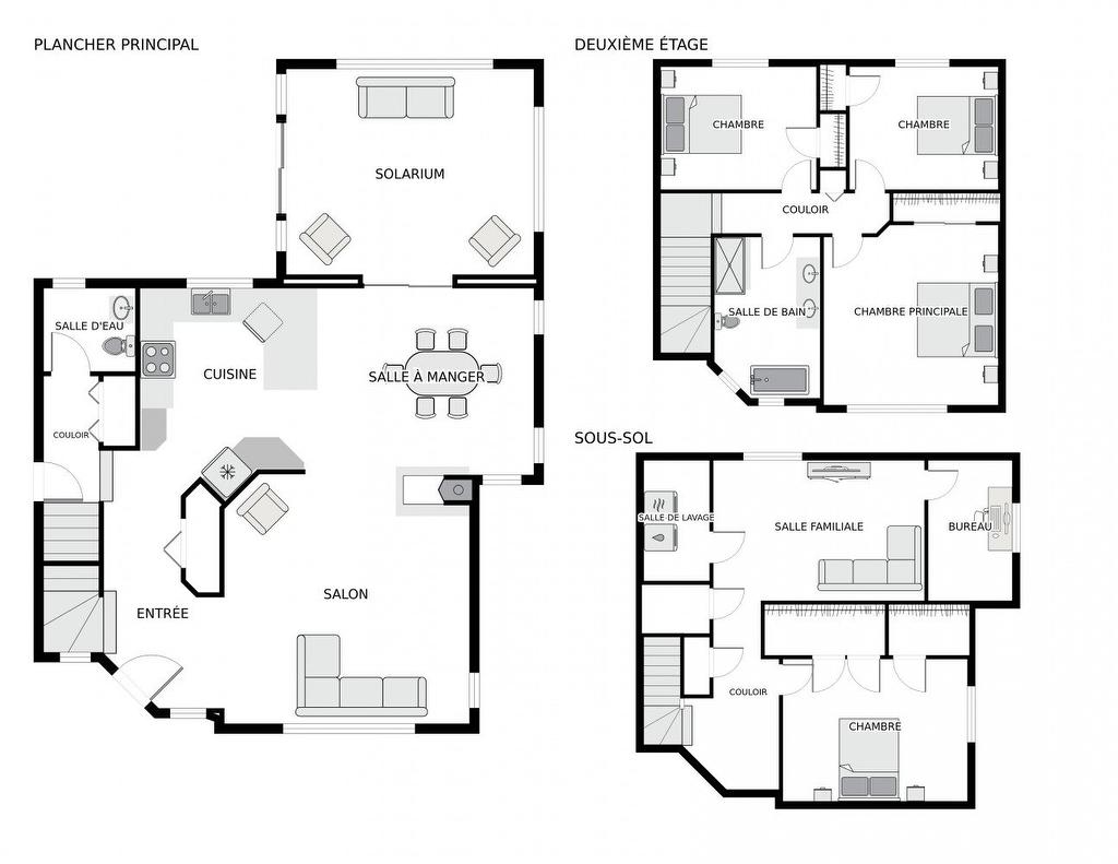
Détails des pièces :
- Hall d'entrée - Irrégulier Rez-de-chaussée 2.41 m x 5.18 m 7.11 p x 17.0 p Plancher : Céramique
- Salon - Irrégulier Rez-de-chaussée 4.98 m x 5.00 m 16.4 p x 16.5 p Plancher : Bois
- Salle à dîner - Irrégulier Rez-de-chaussée 4.32 m x 3.76 m 14.2 p x 12.4 p Plancher : Bois
- Cuisine - Irrégulier Rez-de-chaussée 3.61 m x 3.63 m 11.10 p x 11.11 p Plancher : Céramique
- Solarium Rez-de-chaussée 4.98 m x 4.42 m 16.4 p x 14.6 p Plancher : Bois
- Salle d'eau Rez-de-chaussée 1.83 m x 1.68 m 6.0 p x 5.6 p Plancher : Céramique
- Salle de bains - Irrégulier 2e niveau 2.74 m x 4.27 m 9.0 p x 14.0 p Plancher : Bois
- Chambre principale 2e niveau 4.52 m x 4.65 m 14.10 p x 15.3 p Plancher : Bois
- Chambre 2e niveau 3.84 m x 3.17 m 12.7 p x 10.5 p Plancher : Bois
- Chambre 2e niveau 4.04 m x 3.17 m 13.3 p x 10.5 p Plancher : Bois
- Chambre Sous-sol 4.67 m x 3.61 m 15.4 p x 11.10 p Plancher : Tapis
- Salle familiale - Irrégulier Sous-sol 5.33 m x 3.56 m 17.6 p x 11.8 p Plancher : Tapis
- Salle de lavage Sous-sol 1.65 m x 3.05 m 5.5 p x 10.0 p Plancher : Linoléum
- Bureau Sous-sol 2.13 m x 3.56 m 7.0 p x 11.8 p Plancher : Tapis
Convertir la mesure en :
Données fournies par : Centris - 600 Ch Du Golf, Ile -Des -Soeurs, Québec H3E 1A8
Nous croyons que tous les renseignements affichés sont exacts, mais nous ne le garantissons pas; les renseignements devraient être vérifiés de façon indépendante. Aucune garantie ou représentation de quelque nature que ce soit n’est offerte. Droits© 2021 Tous les droits sont réservés.
Tendances des prix du marché immobilier
Emplacement de 300 Rue du Nénuphar, Granby, QC, J2H 2J9
Données démographiques de 300 Rue du Nénuphar, Granby, QC, J2H 2J9
Étape de vie
Familles grandissantesType d'emploi
MixteRevenu moyen du ménage
105 786.35 $Nombre moyen d'enfants
1,83Population à domicile
Structure à domicile
Âge de la population
Éducation
Niveau d'éducation
No certificate/diploma/degree
15.03 %Diplôme d'études secondaires ou équivalent
23.88 %Certificat ou diplôme d'apprentissage ou d'une école de métiers
18.76 %Diplôme d'études collégiales ou d'études postsecondaires (non universitaires)
23.6 %Certificat d'études universitaires
2.7 %Diplômes d'études universitaires
16.04 %Navetteur
Se rendre au travail
En auto
92.21 %En transport en commun
0.67 %À pied
1.09 %À bicyclette
0.0 %Par tout autre moyen
6.03 %Diversité Culturelle
Connaissance des langues officielles
Langue maternelle
Données Sur Le Bâtiment
Type de bâtiment
Appartements (faible hauteur et à étages multiples)
42.65 %Maisons
57.35 %












































































