Saint-Eustache QC, J7P 3R4
Remarques :
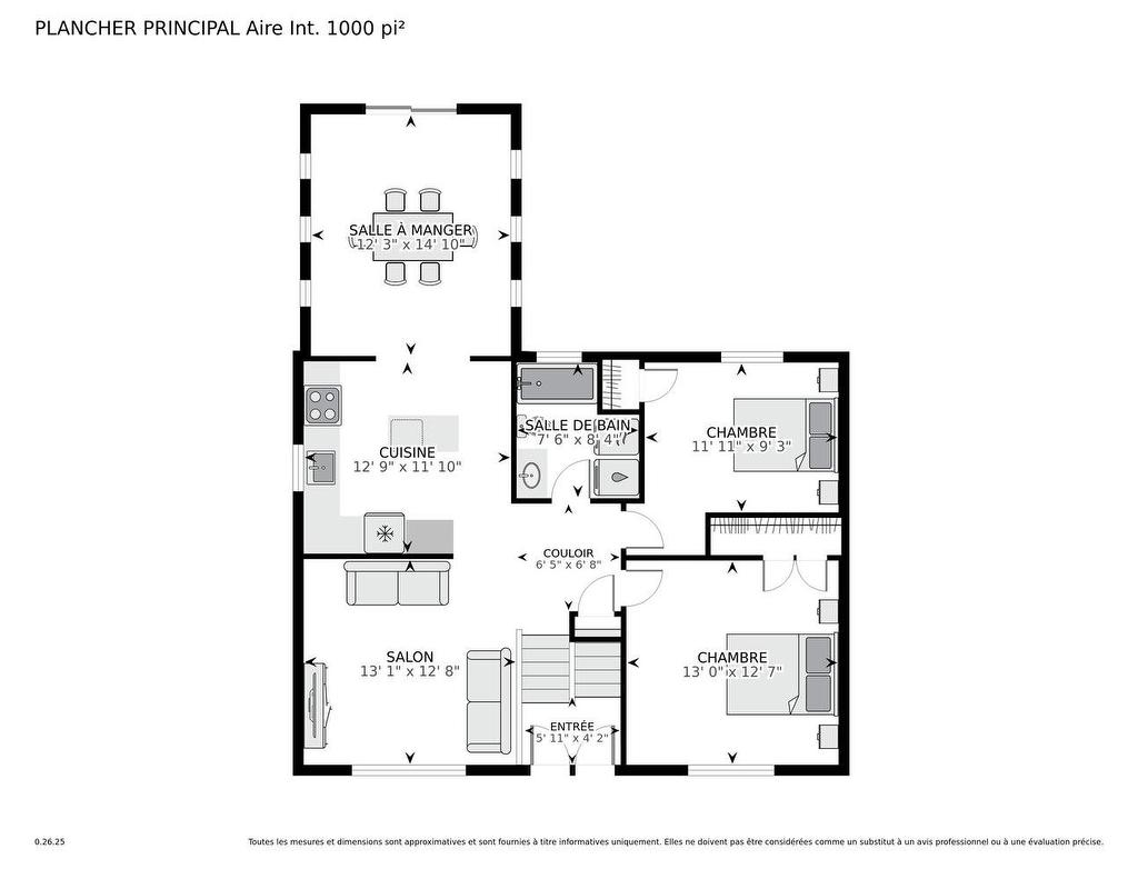
Maison plain-pied avec garage simple séparé, adossée à un parc.Au rez-de-chaussée : cuisine avec îlot central et grande salle à manger offrant beaucoup de fenestration, salon lumineux, deux chambres de bonnes dimensions et salle de bain complète.Au sous-sol : vaste salle familiale avec section bar et poêle à bois, grande chambre à coucher et espace de rangement.Cour arrière avec piscine hors terre. Garage simple séparé. Emplacement idéal avec accès rapide à l'autoroute 13, près de plusieurs services, CPE, écoles et autres commodités.
Inclusions: Luminaires, Piscine Hors-terre et acessoires
Exclusions : Lave-vaisselle
Particularités du bâtiment :
- Style: Maison détachée
- Allée: Asphalte
- Dimensions : 34.4 x 32.4 Pieds
- Fenestration: PVC
- Fondation: Béton coulé
- Foyer-Poêle: Poêle au bois
- Garage: Détaché, Simple largeur
- Piscine: Oui
- Proximité: Autoroute, Garderie/CPE, Parc, Piste cyclable, École primaire, École secondaire, Transport en commun
- Revêtement: Pierre, Vinyle
- Revêtement de la toiture: Bardeaux d'asphalte
- Sous-sol: 6 pieds et plus, Totalement aménagé
- Stationnement: Oui
- Topographie: Plat
- Mode de chauffage: Air soufflé (pulsé)
- Énergie pour le chauffage: Électricité
- Approvisionnement en eau: Municipalité
- Système d'égouts: Municipalité
Taxes:
- Taxes municipales: 2 882 $
- Taxe scolaire: 263 $
- Taxes annuelles totales: 3 145 $
Property Assessemnt:
- Évaluation du terrain: 236 700 $
- Évaluation de l'immeuble: 220 100 $
- Évaluation totale: 456 800 $
Caractéristiques :
- Bâti en: 1973
- Chambres : 2+1
- Dimensions du terrain : 7800.00 Pieds carrés
- Irregular: Oui
- Largeur du terrain en façade : 65.0 Pieds
- Profondeur du terrain : 120.0 Pieds
- Salle(s) de bains : 1
- Zonage: RESI
- Nbre d'espaces de stationnement: 5
Détails des pièces :
- Salon Rez-de-chaussée 3.86 m x 3.68 m 12.8 p x 12.1 p Plancher : Parqueterie
- Cuisine Rez-de-chaussée 3.71 m x 3.40 m 12.2 p x 11.2 p Plancher : Linoléum
- Salle à dîner Rez-de-chaussée 3.63 m x 4.32 m 11.11 p x 14.2 p Plancher : Bois
- Salle de bains Rez-de-chaussée 2.39 m x 2.29 m 7.10 p x 7.6 p Plancher : Céramique Note: Bain-douche
- Chambre principale Rez-de-chaussée 3.84 m x 3.35 m 12.7 p x 11.0 p Plancher : Parqueterie
- Chambre - Irrégulier Rez-de-chaussée 3.51 m x 2.72 m 11.6 p x 8.11 p Plancher : Parqueterie
- Salle familiale - Irrégulier Sous-sol 6.78 m x 2.54 m 22.3 p x 8.4 p Plancher : Céramique
- Chambre Sous-sol 3.58 m x 3.35 m 11.9 p x 11.0 p Plancher : Plancher flottant
- Rangement Sous-sol 3.33 m x 2.29 m 10.11 p x 7.6 p Plancher : Béton
Convertir la mesure en :
Données fournies par : Centris - 600 Ch Du Golf, Ile -Des -Soeurs, Québec H3E 1A8
Nous croyons que tous les renseignements affichés sont exacts, mais nous ne le garantissons pas; les renseignements devraient être vérifiés de façon indépendante. Aucune garantie ou représentation de quelque nature que ce soit n’est offerte. Droits© 2021 Tous les droits sont réservés.
Tendances des prix du marché immobilier
Emplacement de 311 Rue Lauzanne, Saint-Eustache, QC, J7P 3R4
Données démographiques de 311 Rue Lauzanne, Saint-Eustache, QC, J7P 3R4
Étape de vie
Familles avec parents dans la cinquantaineType d'emploi
MixteRevenu moyen du ménage
117 572.62 $Nombre moyen d'enfants
1,72Population à domicile
Structure à domicile
Âge de la population
Éducation
Niveau d'éducation
No certificate/diploma/degree
16.32 %Diplôme d'études secondaires ou équivalent
27.43 %Certificat ou diplôme d'apprentissage ou d'une école de métiers
22.87 %Diplôme d'études collégiales ou d'études postsecondaires (non universitaires)
17.75 %Certificat d'études universitaires
3.6 %Diplômes d'études universitaires
12.02 %Navetteur
Se rendre au travail
En auto
91.17 %En transport en commun
0.35 %À pied
4.15 %À bicyclette
0.0 %Par tout autre moyen
4.33 %Diversité Culturelle
Connaissance des langues officielles
Langue maternelle
Données Sur Le Bâtiment
Type de bâtiment
Appartements (faible hauteur et à étages multiples)
11.74 %Maisons
88.26 %




























































